LES 2 ALPES, Appartement T4

Résidence « alpina lodge »
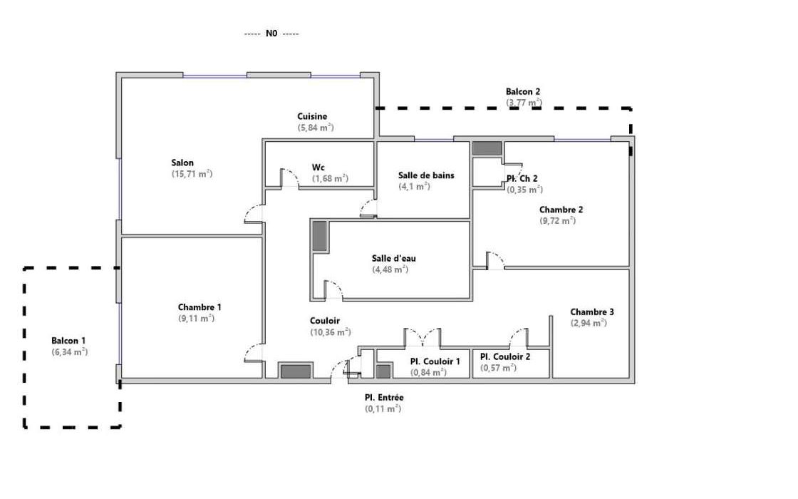
Magnifique appartement type chalet

495 000 €

Au cœur de la station des Deux Alpes, dans le domaine de haute altitude, découvrez ce bien d’exception au sein d’une résidence prestigieuse, idéalement située au pied du télécabine de Belle Étoile et à deux pas des rassemblements ESF Cet appartement offre tout le charme d’un petit chalet, niché dans une copropriété de standing. Il dispose de deux chambres confortables et d’un coin nuit, permettant d’accueillir famille et amis dans un cadre chaleureux et fonctionnel. Sa situation privilégiée permet un accès immédiat aux pistes, à toutes les commodités et aux commerces de la station. Bénéficiant d’une place de stationnement privative, il répond parfaitement aux besoins d’une famille souhaitant s’installer à l’année, tout en présentant un excellent potentiel de rentabilité locative saisonnière. Un produit rare sur le marché des Deux Alpes, qui saura séduire amoureux de la montagne comme investisseurs avertis.

Caractéristiques

  • Honoraires à charge de l'acquéreur de 9 000 € inclus.
  • Soit 1,85 % du prix de vente net vendeur
  • Prix de vente hors honoraires : 486 000 €
  • 65.00 m² loi Carrez
  • Ouest
  • Etage : 2
  • Chauffage collectif fioul
  • Casier à skis : 1
  • Charges : 3800 €/an
  • Taxe foncière : 2007 €€/an
  • Anne GRAVIER
Je suis intéressé
Barème des honoraires